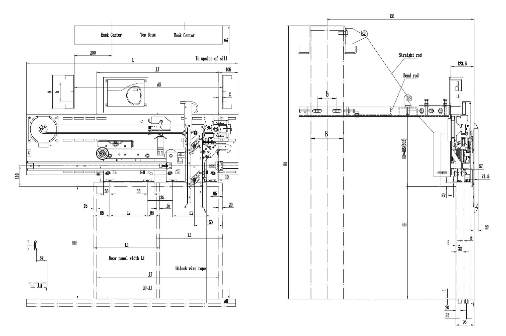
2-Leafs Side Opening Door Operator MJ02D
Permanent Magnet Synchronous Door Operator- With permanent magnet synchronous motor, high efficiency, energy saving, environmental protection
- With absolute encoder, permanent position control
- Synchronous door vane with door lock function, simultaneous operation of car / landing door
- Door hanger plate with anti-impact device, safety security
- Compact size and structure, suitable for passenger elevator
Related Products
Safety Parts
Light Curtain
Safety Parts
Governor OX-186A
Safety Parts
Governor OX-240
Safety Parts
Safety Gear GLKS-D01
Safety Parts
Safety Gear LSG03
Safety Parts
Safety Gear LSG01
Safety Parts

