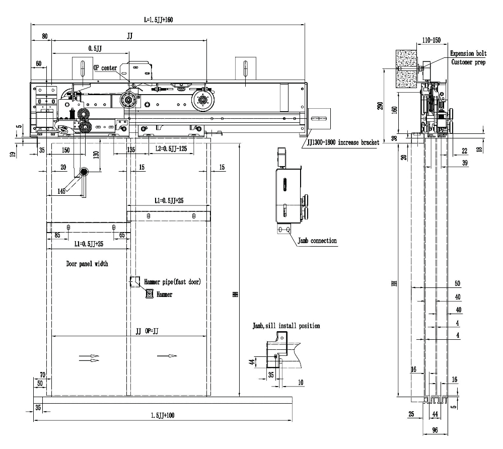
2-Leafs Side Opening Landing Door Device CM02
- Qualified Landing door / Door lock device
- Door closing imposed by heavy hammer
- Unlock way optional according to OPH: Unlock plate / Unlock wire rope
Related Products
Safety Parts
Light Curtain
Safety Parts
Governor OX-186A
Safety Parts
Governor OX-240
Safety Parts
Safety Gear GLKS-D01
Safety Parts
Safety Gear LSG03
Safety Parts
Safety Gear LSG01
Safety Parts

